Italiano
450.000 €

A T T I C O di prestigio con TERRAZZA PANORAMICA

Attico in vendita •
Vivi l’emozione di personalizzare il tuo ATTICO!

A soli 3 km dal centro storico di Treviso, sta nascendo il Residence Corti.

Il piccolo condominio residenziale sarà formato da soli 5 appartamenti.

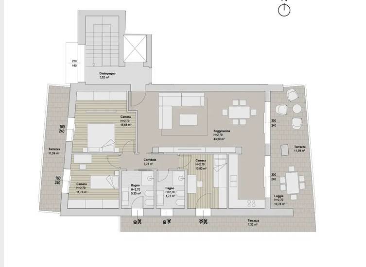
L’ATTICO si svilupperà al piano secondo ed ultimo e sarà composto da:
- soggiorno con angolo cottura di 43,50 mq. (con sviluppo ad “L” con possibilità di ricavare una cucina abitabile separata)
- 3 camere (matrimoniale, doppia, singola)
- 2 bagni finestrati
- 2 terrazze abitabili di cui una di 22,5 mq ideale per vivere momenti di relax all’aria aperta.

- Garage e posto auto al piano terra.

ESPOSIZIONE EST-SUD-OVEST
L’abitazione, libera su 3 lati, offre una luminosità eccezionale grazie alle ampie vetrate che conducono alle due terrazze abitabili.

Consegna prevista: Giugno 2027

PUNTI DI FORZA
Impianto fotovoltaico 1,5 kW
Predisposizione allarme
Predisposizione climatizzazione
Predisposizione VMC
Pavimenti in legno nelle camere
Gres zona giorno e bagni
Tapparelle motorizzate
Ascensore

POSSIBILITÀ DI UPGRADE IMPIANTI
Pacchetto € 9.000,00
Maggiorazione fotovoltaico 1,5 kW
Climatizzazione completa
VMC
Inverter ibrido

Pacchetto € 19.000,00
Tutto il pacchetto precedente
Wallbox per ricarica auto elettrica
Impianto smart home
Batteria di accumulo
Basculante garage motorizzato

Attenzione! Essendo un cantiere in costruzione le immagini sono realizzate per dimostrare quello che l’attico potrà diventare.

Ti aspettiamo in agenzia per maggiori informazioni o per fissare una visita.

Contattaci ora al numero 393 7380514

RIF. SZ458

Stefania Zimbaro
Consulente Immobiliare

Numero R.E.A. TV 332246
Iscr. ex Ruolo Med. CCIAA n. 2758 TV

REUNION
Viale G. Verdi, 23/E 31100 TREVISO (TV)

Cell. +39 393.7380514

www.agenziareunion.it
stefania.zimbaro@agenziareunion.it
stefania.zimbaro@pec.net
Caratteristiche principali
Codice
SZ458
Categoria
Attico
Prezzo
450.000 €
Locali
4
Camere
3
Bagni
2
Mq
125
Box
1
Mq Box
19
Posti auto
1
Terrazzi
2
mq Terrazzo
34
Classe energetica
A4

Accessori: Ascensore, Cancello Elettrico, Doppi Vetri, Porta Blindata, Tapparelle Elettriche, Video Citofono

Condividi su
Cookie preference