Italiano
430.000 €

Per chi ama le ampie TERRAZZE

Appartamento in vendita • Treviso (S. Zeno)
Nuovissimo, comodo e ideale per chi ama le ampie TERRAZZE!

Questo è molto di più di un luogo dove tornare a dormire. Qui potreste sentirvi finalmente realizzati, pronti a iniziare un progetto di vita più concreto che darà quel tocco in più per farvi sentire bene.

Questo immobile si trova in posizione residenziale silenziosa e ben collegata ai principali servizi.
Situato al piano secondo CON ASCENSORE potrebbe essere considerato il tuo rifugio speciale, il luogo dove rilassarsi grazie alle

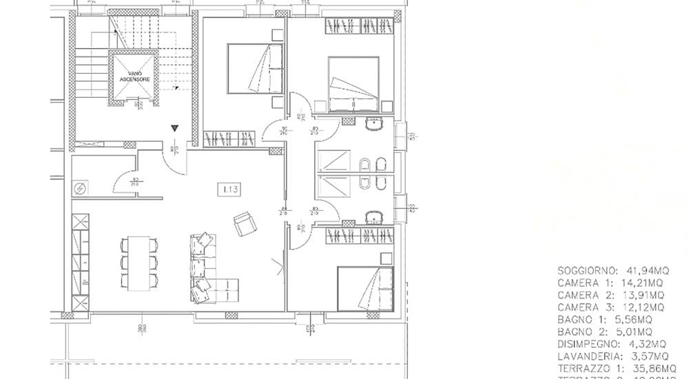
DUE INCANTEVOLI TERRAZZE DI 35,86 MQ e di 10,90 MQ.

ideali per vivere momenti all’aperto, pranzi e cene in compagnia o semplicemente per dare uno spazio al proprio animale domestico che a volte in casa proprio non ci vuole stare.

All’interno, l’ingresso si apre su un soggiorno con cucina a vista di oltre 41,94 mq con una ampissima vetrata scorrevole a tutta altezza.
Il disimpegno conduce alla zona notte dotata di-
- 3 camere matrimoniali
- 2 BAGNI
A completare la funzionalità dell’appartamento una utilissima zona lavanderia e un ormai RARISSIMO RIPOSTIGLIO.
Accogliente e razionale, questo appartamento in fase di costruzione acquista un maggior valore grazie al box auto al piano terra.

E per te che sei attento ai dettagli e pensi al futuro, siamo certi che apprezzerai le caratteristiche e dotazioni impiantistiche all’avanguardia realizzate pensando al risparmio energetico come ad esempio:
* elevato isolamento invernale ed estivo
* riscaldamento a pavimento
* autosufficienza energetica grazie al fotovoltaico sul tetto abbinato alle batterie di accumulo energetico
* luci a LED ad alta efficienza
* vetrate isolanti con vetro basso emissivo
* massima CLASSE DI EFFICIENZA ENERGETICA
* domotica

Si precisa che l'immagine è solo un rendering e che l'indirizzo di questo annuncio è solo indicativo della zona e non dell'esatta ubicazione dell'immobile.

Contattaci per visionare l’immobile al 393 7380514 e non perdere l’occasione!

RIF. SZ456

tel. 393 7380514

Stefania Zimbaro
Consulente Immobiliare

Numero R.E.A. TV 332246
Iscr. ex Ruolo Med. CCIAA n. 2758 TV

REUNION
Viale G. Verdi, 23/E 31100 TREVISO (TV)

Cell. +39 393.7380514

www.agenziareunion.it
stefania.zimbaro@agenziareunion.it
stefania.zimbaro@pec.net
Caratteristiche principali
Codice
SZ456
Città
Treviso (S. Zeno)
Categoria
Appartamento
Prezzo
430.000 €
Locali
4
Camere
3
Mq
168
Box
1
Classe energetica
A4

Accessori: Cancello Elettrico, Doppi Vetri, Impianto Domotica, Impianto Fotovoltaico, Parco Condominiale, Video Citofono

Condividi su
Cookie preference