Italiano
1.200 €

ABITARE VICINI AL CENTRO MA NON IN CONDOMINIO?

Villetta schiera in affitto • Treviso (Fuori Mura)
N.B. Le visite sull’immobile avverranno solo dopo aver inviato i dati relativi al reddito percepito e alla composizione del nucleo familiare
ESCLUSIVAMENTE VIA MAIL
all’indirizzo di Agenzia Reunion (stefania.zimbaro@agenziareunion.it)


Avere uno spazio per i vostri hobby o che vostro figlio potrebbe utilizzare per trascorrere del tempo con amici in un ambiente protetto?
Vivere in una metratura comoda ma non dispersiva?

Potrete trovare tutto questo in questa villetta a schiera centrale del 2000 a breve distanza dalle mura del centro storico.

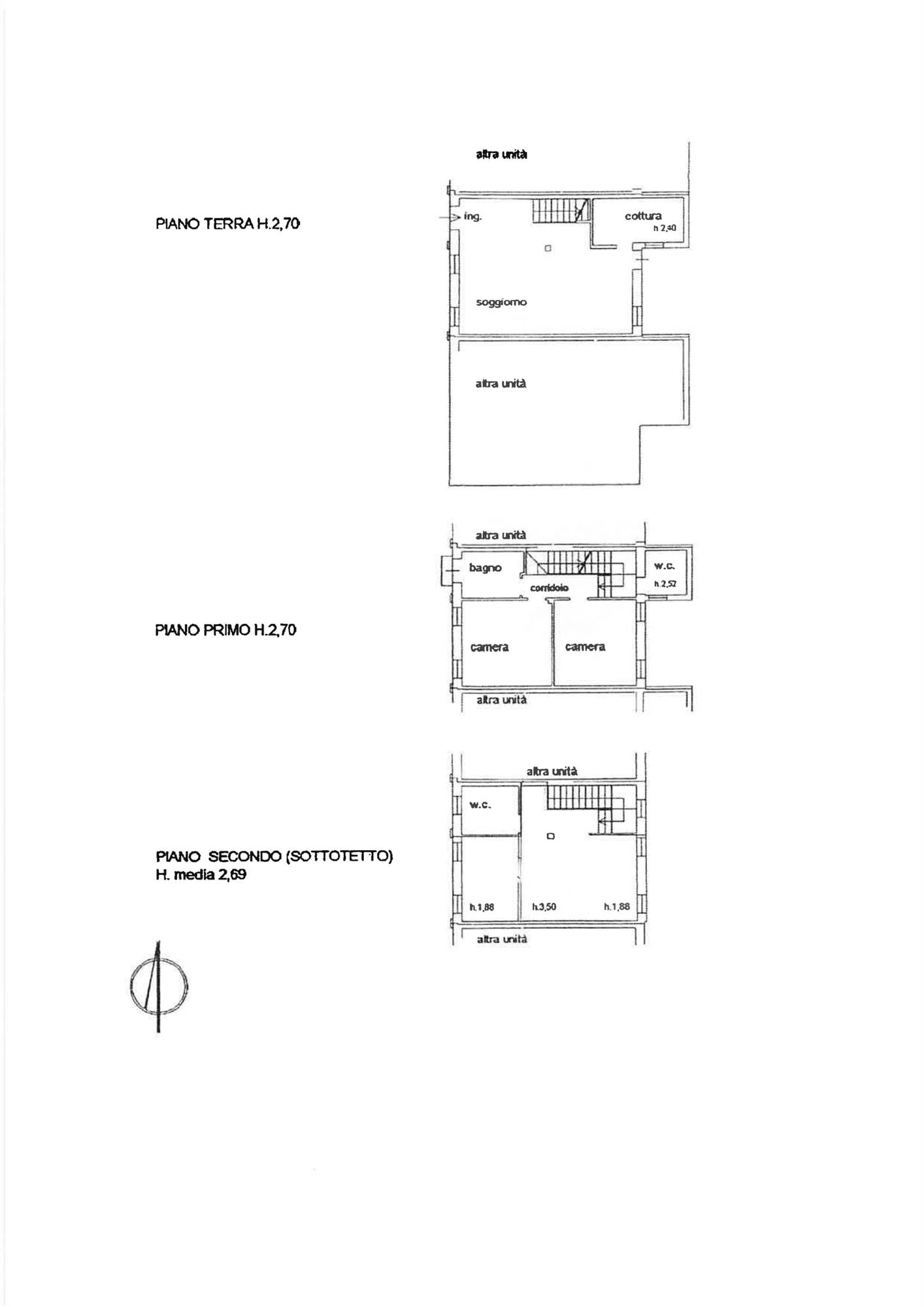
Attraverso l’ingresso indipendente sul giardinetto privato, accediamo al soggiorno davvero spazioso con zona pranzo e comoda cucinetta separata.
Piccolo scoperto privato anche verso l’interno.
Salendo la bella scala in legno al piano primo troviamo due comode camere da letto entrambi matrimoniali e 2 bagni finestrati, uno con vasca e l’altro con piatto doccia.
Infine in mansarda travata a vista altra ampissima camera e stanza studio/hobby. Terzo bagno al piano mansardato.

Garage e posto auto di proprietà.

Arredato di cucina completa di tutti gli elettrodomestici (lavastoviglie inclusa), lavatrice e mobili bagni.

Riscaldamento autonomo.
Portoncino d’ingresso blindato, videocitofono, climatizzatore.

Libera dal 1° NOVEMBRE 2025.

RIF. SZ451

Stefania Zimbaro
Consulente Immobiliare

Numero R.E.A. TV 332246
Iscr. ex Ruolo Med. CCIAA n. 2758 TV

REUNION
Viale G. Verdi, 23/E 31100 TREVISO (TV)

Cell. +39 393.7380514

www.agenziareunion.it
stefania.zimbaro@agenziareunion.it
stefania.zimbaro@pec.net


Caratteristiche principali
Codice
SZ451
Città
Treviso (Fuori Mura)
Categoria
Villetta schiera
Prezzo
1.200 €
Locali
6
Mq
150
Classe energetica
E
Panorama
Vista Giardino
Orientamento
Ovest Est
Giardino
Privato
Arredi
Semi Arredato
Riscaldamento
Autonomo
Tipo Impianto
Radiatori
Infissi
Legno Doppio Vetro
Serramenti
Ottimo
Persiana
Oscurante Legno

Accessori: Aria Condizionata, Doppi Vetri, Fibra Ottica, Porta Blindata, Ripostiglio, Video Citofono

Condividi su
Cookie preference